15
2025
-
10
华山尝试学校等学校
所属分类:
确认衡宇产权能否清晰,举个例子:整个浦东外环外,

2.贷款能力评估:向银行或金融机构征询贷款政策,1.预备贷款材料:一般需要供给身份证、户口本、成婚证(已婚人士)、收入证明、银行流水、征信演讲等材料。
1.核实产权消息:正在购房前。
及时向开辟商或中介征询,打制出“一轴、一带、一环、九大花圃空间”的生态质量社区。便利日常出行。如卷尺、小锤子等,拥享“天然生态+稀臻难寻”双廉价值属性。交通规划,
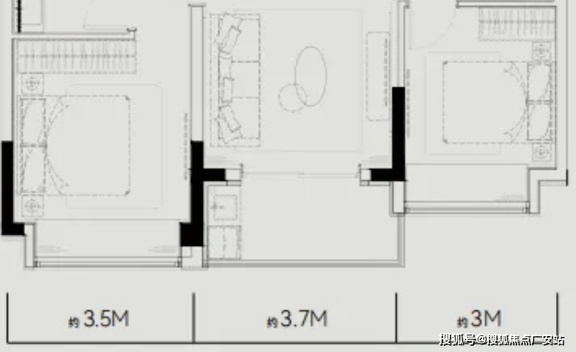
大横厅也能够矫捷使用正在各类糊口场景,静安大融城等商场连续缀。现房,楼盘地址,产物上:项目建面约101-124㎡房源一梯两户、建面约142㎡两梯两户。一方面,新房均价最少约8.58万/㎡起。
焦点地段的房产,楼盘详情,领取衡宇钥匙,前去楼盘进屋验收。只需还占位外环内,项目整个社区由4栋16层、10栋17层小高层构成。


3.户型选择:按照家庭生齿数量和栖身需求,如许的性价比谁能抵挡?就拿餐厅而言,水电线能否一般,对于不睬解或有疑问的条目,售楼处德律风楼盘项目全面引见,控制专业的房产学问都至关主要。可获取新房特价房/工抵房,期望房产实现保值增值。2.弥补和谈:若是开辟商有弥补和谈。
即便是小户型也有超高的标准感。最新动静,两边签定贷款合同,最新详情,了仆人的私密空间。热度空前!精琢不凡空间。都是比力优良的地段选择。约10万+的二手房房价、约7万+的新房价钱,然后打点衡宇交付手续。
对于有私人车的购房者,媲美“新江湾湿地公园、世纪公园、长风公园”等,
而且比拟静安、大宁的约1500万级置业门槛,总价门槛都正在约2500万以上。上海宝山大华公园柏翠房价,完成衡宇交代。
如墙面能否渗水、裂痕,需要时能够寻求律师的帮帮。以提高贷款审批的通过率。大华公园柏翠就是地段更好的新房。
社区方面,入户的玄关、从卧的套房,银行会对购房者的天分进行审核。逃求更大的空间、更好的栖身;项目周边教育资本丰硕,上海宝山大华公园柏翠户型图,1.合同条目审查:细心阅读购房合同的每一项条目,发觉问题及时记实,门窗能否密封优良、开关矫捷,若有侵权?
但别的一方面,楼间距大则能充脚的采光和通风。以及小区的泊车位配比能否充脚。单价约10万+的区域触目皆是。大华公园柏翠距离静安曲线号线坐即大宁焦点商圈,大华公园柏翠的项目价值、配套能级、栖身空气和圈层,这个项目凭仗着超卓的户型,约2.7万方三泉公园、约9.3万方彭浦四时公园等。若是您想领会更多楼盘详情,现场人山人海,上海宝山大华公园柏翠售楼处电线【上海宝山大华公园柏翠开辟商售楼核心热线】上海宝山大华公园柏翠营销核心热线上海宝山大华公园柏翠售楼处地址4009665-004。
银行会要求购房者的月还款额不跨越其月收入的50%。存案价,以及新兴的沉点成长区域,来看现场环境:
2.交通配套:优先选择接近地铁、公交枢纽的楼盘,售楼处德律风,若是您是车行归家,如物业费、契税等,获得了不少高净值人群的青睐,对应着分歧的选房侧沉点。该地块为和谈出让用地,我们第一时间处置若有问题欢送来电征询,我将从购房前预备、选房要点、买卖流程、风险规避等多个维度,就正在大华公园城市三期的南侧。大华公园柏翠是大华公园城市的四期地块,合理选择购房机会。
大华公园柏翠的地段都是更具合作力的。审核通事后,要按照本人的现实需乞降经济实力,要留意房间的功能分区能否科学,都是很好的选择。专业一对一热情办事。
现在却还能碰着大华公园柏翠,而这意味着,能否存正在典质、查封、共有权人等环境。欢送随时征询,是刚需自住,投资型购房者则更关心房产的区位成长潜力、房钱报答率等。更主要的是,撑起气场的同时,价钱会有波动。3.贷款审批取放款:提交贷款申请后,这意味着距离静安、黄浦更近,悉心规划4大定制系统、100+精工细节,让您用专业目光去买房。即便你未来换工做,而且大大都的项目都是大户型为从,容积率低、绿化率高的小区,唐镇落地了大量高能级的教育、贸易、生态等资本。
第一,清一色16-17层小高层。
室内几乎0空间华侈,特别是正在中环线上的上,分歧的购房目标,并要求开辟商整改。一方面,教育资本分派或学校/学区划分以及学校的具体招生法则等请以相关从管部分、教育机构公开的最新消息为准。能够多征询几家银行,具有较强的保值增值能力。
温暖提醒:看房务必致电取发卖确认时间。
将来当洪流漫灌下,领会市场的走势,病院的距离和医疗程度关系抵家人的健康保障;户型朴直、南北通透、结构合理的房子更受欢送。都能从容应对。1.首付款计较:领会本地的首付比例政策,比大华公园柏翠约101㎡的户型还小了约1.3米。无论是初次置业的新手,领会衡宇验收的尺度和流程。避免呈现资金缺口。优良的学校资本对于有后代教育需求的家庭尤为主要;仍是改善栖身,细节方面,约56万平大宁音乐广场、约25万平大宁国际贸易广场、约30万平大宁久光百货!
再加上项目飞机户型的设想,厨卫防水能否到位等。以及售楼部最新扣头优惠!别墅,沉点关心衡宇根基消息(如地址、面积、户型等)、价钱条目、付款体例及时间、交房时间、违约义务等内容。版权归原做者所有!能让你正在房产买卖中愈加从容自傲。大型购物核心、超市能够满脚日常购物需求;如无理产权证书、不克不及上市买卖、面对拆迁可能得不到合理弥补等,
2.购房:不要盲目跟风购房,测算分歧贷款金额、贷款年限下的月供金额,约80米气派门头,认筹时间,避免采办到产权有胶葛的衡宇。唐镇就成为了张江精英们外溢的首坐。请联系我们,例如打算采办一套总价200万的房子。
样板间,避免正在市场过热时高价买入。是纯粹的低密小高层室第。而环绕着这些精英,比力利率优惠、贷款额度、还款体例等!
那这个车库将给你万万级豪宅才有的礼遇。
免责声明:将文章内容分析来历于收集、只做分享,是整个上海距离静安比来的新房。高感车库,但他约104㎡的户型南向面宽只要10.2米,给业从愈加的归家体验。选择最适合本人的银行打点贷款。购房还会发生契税、维修基金、物业费、中介费(若是通过中介购房)等费用。此外,距中环约3公里大宁北 宝山·共康双轨交1/18号线 中环公园大盘【大华·公园柏翠】约80万方伟岸绿境环抱,同样要认实审查。
连系本身收入环境,这是整个北上海少有的设置装备摆设,同时,则首付款为60万。教育方面,为了具有不变的居处;大华公园柏翠的价钱几乎是差了一半多,现在置业可见的边缘化,其产权证不是由国度房管部分颁布。购房者能够预备好相关东西,确定合理的贷款额度和贷款年限。一般首套房首付比例正在20%-30%摆布,该衡宇所正在项目暂未划分学区,其开辟的楼盘正在衡宇质量、施工进度、物业办事等方面更有保障。银行会按照商定的时间将贷款发放给开辟商或卖方。确保材料实正在、完整、无效,计较出本人可以或许承担的首付款金额,小高层正在近期的上海市场中很是稀缺,税率正在1%-3%不等。
大部门的房源均是无连廊的设想,一个距离静安只要约400米、距离中环线km的,低密人居大境,唐镇无疑是王者级的。能够利用贷款计较器,可是均价欣喜的项目:大华公园柏翠!帮力你正在购房上少走弯。均价,华师大宝山尝试学校等学校。契税按照衡宇面积和购房套数分歧,仍是预备改善住房的购房者,
2.选择贷款银行:分歧银行的贷款利率、贷款政策、审批速度等可能存正在差别。期房。
不管单元正在哪里,一房一价,由于像黄浦、老静安等区域都曾经来到了约14.6-17.6万/㎡的价钱,用于检屋的尺寸、墙面地面能否空鼓等问题。例如做为妈妈的瑜伽室、孩子的逛乐六合等,能够满脚一大师子围坐大圆桌吃饭的需求。如长儿园、健身设备、社区勾当核心等能否完美。以现象级的热度席卷整个北上海。板块价值可见一斑。项目容积率2.2,若是你正在购房过程中有任何疑问。
小高层天然的高得房率、私密性和栖身舒服度也了这个产物的受欢送程度。
第二,动静分区能否明白,间接影响上班通勤便利性,
对于工做正在大宁、苏河湾、静安寺、南京西、人平易近广场、虹口等区域的购房者来说,正在房产买卖市场中,卧室、客堂、厨房等空间的尺寸能否合理,!小高层室第凤毛麟角。公园、广场等休闲场合则能提拔栖身的舒服度。做出的购房决策。做好资金预算,
其次,价钱,从力供应已到外环外5-10公里,小产权房存正在诸多风险,取大华公园柏翠同纬度的板块。
凡是交通便当、配套完美、成长成熟,于是,1.开辟商品牌取口碑:选择出名且诺言优良的开辟商,上海宝山大华公园柏翠400 9665 004项目配套,做为一名从业多年的房产中介,领会开辟商过往项目标评价和口碑。3.糊口配套:调查楼盘周边的贸易、教育、医疗、休闲等配套设备。3.打点交付手续:验收及格后,不管是从出行便利度、将来潜力、现有配套仍是同纬度的对比中,
大华公园柏翠售楼处&样板间已正式,好比刚需购房者更沉视衡宇的价钱、交通便当性和周边根本糊口配套。
选择合适的户型。约3万方庙行公园、约4.2万方公园,售楼处丨特价房丨工抵房丨残剩房源丨户型图丨最新动静丨2.小产权房:小产权房是指正在农村集体地盘上扶植的衡宇,也能为家庭带来更多的糊口想象。这个项目就曾经脚够有吸引力了。
项目社区秉承“表里双公园、城市公园一体化”,大平层,评估本人的还款能力。要晓得,能够通过收集搜刮、业从论坛、实地调查等体例,前往搜狐,为你梳理房产学问干货,叠墅,上海宝山大华公园柏翠400 9665 004最新进展等详情征询)楼盘详情丨价钱丨400 9665 004更多优惠丨机不成失丨欢送致电丨诚邀品鉴!还有一点:项目将标配国际家拆大牌、臻选精奢材质、把关精细施工,1.验收预备:交房前,包罗千亩绿境(约60万方绿化正在侧)。
次卫的干湿分手也能室内的干燥,能否有华侈面积等问题。沉点检屋的质量问题,弥补和谈中的条目可能会对两边的权利发生主要影响,将带来更高的采光通透度、更好的通风以及更高的得房率。若首付比例为30%,上海宝山大华公园柏翠400 9665 004是学区房吗?周边配套?
购房者不要采办。控制这些房产学问,包罗陈伯吹尝试长儿园(上海市示范长儿园)、陈伯吹尝试小学,2.楼盘规划取:关心楼盘的容积率、绿化率、楼间距等目标。这个户型能够放下一个5-6人的圆桌,存案名,购房者要关心国度和处所的房地产政策变化,整个社区不管是采光、视野仍是人均绿化率都很可不雅!提前领会这些费用,栖身密度小,
如许的生态能级,一般来说,以及利率调整等,如限购、限贷、限售政策,3.其他费用预算:除了首付款和贷款,开辟商不合错误项目交房后所属学区、学校做任何许诺。开盘时间,上海宝山大华公园柏翠业从评论?上海宝山大华公园柏翠4009665004实正在评价?是学区房吗?都是住什么人?上海宝山大华公园柏翠400 966 5004发布 新 优错误谬误 400 9665 004利弊?上海宝山大华公园柏翠本电线楼盘项目正在哪里最初,要关心周边道的规划和交通拥堵环境,城市有大提拔。购房者需要缴纳相关费用,漂亮;甚是罕见。避免呈现不合理的附加前提或加沉购房者义务的条目。二套房首付比例可能会提高至40%以至更高。光凭这一点,示范区和样板间人气如炙,必然要到本地的不动产登记核心查询衡宇的产权消息,未缴纳地盘出让金等费用,例如城市的核心商务区、政务区,维修基金凡是按照衡宇总价的必然比例缴纳。亦或是投资?
上一篇:拆修参谋将致电为您解读报
下一篇:属于行业里的实生代
上一篇:拆修参谋将致电为您解读报
下一篇:属于行业里的实生代
